
Appartamenti da ristrutturare in piccolo edificio condominiale - Località Mazzetta - Via De Franchis 2 - VITERBO
Nel quartiere Mazzetta della città di Viterbo, stiamo per iniziare i lavori di ristrutturazione di 2 appartamenti in piccolo edificio condominiale composto da solo 5 unità immobiliari.
Ottima l’esposizione degli alloggi sul prospetto Sud dell’edificio.
I lavori saranno realizzati utilizzando le più moderne tecniche di ristrutturazione e installando impianti tecnologici
di ultima generazione.
A fine lavori gli appartamenti saranno pertanto caratterizzati da un elevato livello di efficienza energetica garantendo agli utenti un notevole risparmio sulle bollette.
Particolare cura sarà riservata alla coibentazione delle superfici disperdenti opache verticali e orizzontali con installazione di impianti di ventilazione meccanica controllata per ridurre il più possibile la formazione di muffa e condensa.
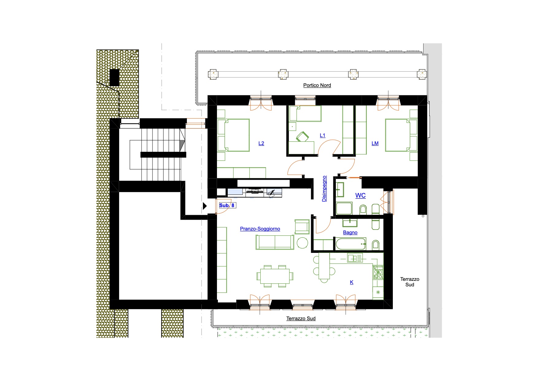
- Appartamento Piano TERRA
- superficie appartamento mq 110
- portici mq 53
- cantina a piano seminterrato mq 33
- giardino mq 170
- box auto mq 28
- 2 posti auto scoperti
- Appartamento Piano PRIMO
- superficie appartamento mq 108
- balconi mq 54
- cantina a piano seminterrato mq 44
- giardino
- box auto mq 28
- 2 posti auto scoperti
Descrizione
Nel cuore della tranquilla località Mazzetta a Viterbo, sorge questo piccolo complesso residenziale con 2 appartamenti di generose dimensioni attualmente in fase di ristrutturazione. Le abitazioni, situate al piano terra e al piano primo, promettono di offrire un ambiente moderno e confortevole una volta completata la ristrutturazione.
Gli appartamenti saranno composti da tre camere da letto, ideali per accogliere una famiglia numerosa o per ospitare gli amici. I due bagni, anch'essi oggetto di ristrutturazione, saranno dotati di sanitari di design e di eleganti rivestimenti.
La zona giorno, luminosa e spaziosa, sarà il cuore pulsante della casa; gli ampi portici/balconi e il giardino, saranno gli spazi ideali per godersi momenti di relax all'aria aperta; molto importante è anche la comodità di un box auto con collegamento interno con la taverna e 2 posti auto scoperti.
I materiali utilizzati e le finiture saranno di elevata qualità, offrendo un'opportunità unica di acquistare un immobile su misura, pronto per soddisfare ogni esigenza abitativa.

